Advanced parking system for efficient use of long, narrow spaces

Automated Vehicle Movement
The system ensures fully automated parking and retrieval of vehicles, eliminating the need for manual handling or driving inside the facility. This not only saves time but also enhances convenience for users.

Space Efficiency
By maximising vertical and horizontal space utilisation, the system allows significantly more vehicles to be parked compared to conventional methods. It is especially effective in narrow plots and high density urban areas.

Smooth Operations
Equipped with advanced three directional robotics which ensures seamless,quite and vibration-free movement of vehicles,delivering a premium experience for end users.

Automated Vehicle Movement
The system ensures fully automated parking and retrieval of vehicles, eliminating the need for manual handling or driving inside the facility. This not only saves time but also enhances convenience for users.

Space Efficiency
By maximising vertical and horizontal space utilisation, the system allows significantly more vehicles to be parked compared to conventional methods. It is especially effective in narrow plots and high density urban areas.

Smooth Operations
Equipped with advanced three directional robotics which ensures seamless,quite and vibration-free movement of vehicles,delivering a premium experience for end users.
Product
Cart Type Parking System
Type
Length Wise, Width Wise
Capacity
Upto 3.5 Tons
Travel Height
As per Project Requirement
Combinations
Single/Double deep car park
Speed
1.5 mps
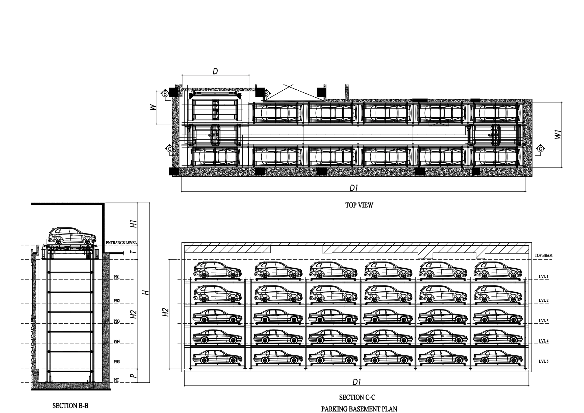
Skyzone’s Cart Parking System is designed to maximize parking efficiency in narrow buildings. Unlike conventional systems, it optimizes every inch of space perfect for properties with limited width. The system works fully automatically: vehicles are parked and retrieved through ground-level entry rooms, with no human intervention beyond inputting car details. Advanced three dimensional robotics handle smooth movement for project needs. Skyzone offers flexible configurations above ground, underground, or hybrid as well as customized solutions for specific vehicle sizes and project needs.
Features
All images used are for illustrative and representation purposes only.*
For More Details & Features Contact Us:
Structure
Optional Features
All images used are for illustrative and representation purposes only.*
For More Details & Features Contact Us:
Technical Specification

01
High Density Car Parking Requirements
Ideal for large residential complexes, airports, malls, commercial hubs, and IT parks. The Skyzone Cart Parking System efficiently accommodates large no. of cars with compact footprint.
02
Premium or Luxury Real Estate Projects
Perfect for high-end residential towers, smart city projects, and iconic buildings, the Skyzone Cart Parking System blends aesthetics with user convenience for a seamless parking experience.
03
Fully Automated Contactless Parking Needed
Touchless experience to the vehicle making it ideal solutions for hospitals, public parking hubs and corporate campuses.
04
Fast and simultaneous Operation
With multiple three dimensional robotics operating simultaneously, the system ensures faster cycle times making it highly efficient during rush-hour demand scenarios such as office parks and airports. The three dimensional system robotics moves along 3 axes offering flexibility to adapt to non- linear plots or multi – wing buildings.
05
Sites with Irregular or Complex Layouts
The system’s carts move along both X and Y axes, offering flexibility to adapt to non-linear plots or multi-wing buildings, while seamlessly bypassing columns or service ducts during design.
06
Projects with High Land Cost or Space Crunch
The Skyzone Cart Parking System maximizes space with multi-level, zero-driveway layouts, eliminating the need for ramps, driveways, ventilation systems and human security.
Projects

Sp Designate, Khar
Cart type Parking

Romal Vasanthi, Mulund
2+2 Tower Parking

Romal Orbis, Andheri
2+3 Tower Parking
See all Projects
Frequently Asked Questions
What is the Skyzone Cart Parking System?
It is 3D robotic solution that uses carts and lifts to park and retrieve vehicles efficiently, maximizing space in residential, commercial, and high-traffic areas.
How does the system work?
Vehicles are driven into a entry point from where the system automatically parks or retrieves them with 3D robotics. With no human intervention
Where can this parking system be installed?
How many cars can the system accommodate?
Depending on the layout, Skyzone can handle 8–42 cars, with extensions up to 2–5 levels and 3–8 grids for larger projects.
Is the system customizable for different vehicle sizes?
Yes, it supports variable car lengths, widths, and weight capacities, with customization options based on project requirements.



It is ideal for residential buildings, hospitals, malls, corporate campuses, airports, and any location with limited space or high land costs.